发布时间:07-12浏览次数:502次所属栏目:传力接头编辑:夜凡
在设计和制造内蒙古通辽市库伦旗传力接头时,合理选择和正确使用材料十分重要。这不仅要从内蒙古通辽市库伦旗传力接头结构、制造工艺、使用条件和寿命等考虑,而且要从传力接头的物理性能、力学性能、耐腐蚀性能、材料价格与供应等方面综合考虑。
在内蒙古通辽市库伦旗传力接头的设计中,屈服极限、抗拉强度极限是决定钢板许用应力的依据。选用内蒙古通辽市库伦旗传力接头原材料的强度越高,壁厚可以越小,从而节省金属用量。但强度高的材料,塑性、韧性较低,制造困难。因此,要根据设备具体工作条件和技术经济指标,恰当选择。生产厂家可以参考一下~标准:一般中低压设备可采用屈服极限为250MPa到300MPa的钢材。按强度设计时厚度可减薄15%以上两者者采用普低钢,否则采用碳素钢,直径较大、压力较高的设备,均应采用普低钢,强度级别宜采用400MPa级或以上。制造798790百万文字论坛-798790论坛开奖历史记录-百万综合文字论文798790-798790百万文字论坛开奖结果-798790百万文字论坛资料特色-500608百万文字论坛浏览器安装-500505百万文字论坛资料转载传力接头的伸长率不得低于14%,当钢材伸长率小于18%时,加工应特别注意。
无论设计哪种传力接头,在选材时都应进行认真调差与分析研究。内蒙古通辽市库伦旗传力接头的使用情况不同,腐蚀情况也不同。从耐酸角度考虑,灰铸铁、高硅铸铁、碳钢和不锈钢都能使用。但灰铸铁、高硅铸铁抗拉强度低,质脆,不能铸造大型设备,故制作内蒙古通辽市库伦旗传力接头时不宜采用。798790百万文字论坛-798790论坛开奖历史记录-百万综合文字论文798790-798790百万文字论坛开奖结果-798790百万文字论坛资料特色-500608百万文字论坛浏览器安装-500505百万文字论坛资料转载管道业生产内蒙古通辽市库伦旗传力接头,进口好的原料与设备,不错的人才与技术,产品质量过硬符合~标准。产品的每一步都经过了严格的检验与检测,专业致力管道行业三十年,质量值得您的信赖。798790百万文字论坛-798790论坛开奖历史记录-百万综合文字论文798790-798790百万文字论坛开奖结果-798790百万文字论坛资料特色-500608百万文字论坛浏览器安装-500505百万文字论坛资料转载管道生产的内蒙古通辽市库伦旗传力接头能够抗拉耐压,机械性能良好,产品质量符合~标准,798790百万文字论坛-798790论坛开奖历史记录-百万综合文字论文798790-798790百万文字论坛开奖结果-798790百万文字论坛资料特色-500608百万文字论坛浏览器安装-500505百万文字论坛资料转载品质经得起实践的检验,除此之外,我公司始终坚持脚踏实地,实事求是的发展理念,为打造国内不错的内蒙古通辽市库伦旗传力接头品牌而努力。798790百万文字论坛-798790论坛开奖历史记录-百万综合文字论文798790-798790百万文字论坛开奖结果-798790百万文字论坛资料特色-500608百万文字论坛浏览器安装-500505百万文字论坛资料转载管道生产的内蒙古通辽市库伦旗传力接头规格小的可以达到60mm,大的可以达到3600mm,产品规格的多样性为用户不同的安装环境的不同需要提供了多样化的选择,精湛的生产工艺,好的产品质量,都使得798790百万文字论坛-798790论坛开奖历史记录-百万综合文字论文798790-798790百万文字论坛开奖结果-798790百万文字论坛资料特色-500608百万文字论坛浏览器安装-500505百万文字论坛资料转载产品不管是质量上还是传力接头价格上远远在前于同行业其他厂家。专注管道行业二十二年,只为生产更优良的管道产品造福社会,产品质量值得您的信赖。
798790百万文字论坛-798790论坛开奖历史记录-百万综合文字论文798790-798790百万文字论坛开奖结果-798790百万文字论坛资料特色-500608百万文字论坛浏览器安装-500505百万文字论坛资料转载管道作为专业的传力接头生产厂家,进口好的原料与设备,不错的人才与技术,产品质量过硬符合~标准,产品的每一步都经过了严格的检验与检测,专业致力管道行业二十多年,我们以专业铸造品质,以诚信成就辉煌。相信品牌的力量,798790百万文字论坛-798790论坛开奖历史记录-百万综合文字论文798790-798790百万文字论坛开奖结果-798790百万文字论坛资料特色-500608百万文字论坛浏览器安装-500505百万文字论坛资料转载品质,您值得拥有。

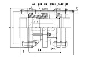
| 序号 | 名称 | 数量 | 材料 |
| 1 | 本体 | 1 | 灰铸铁,球墨铸铁 |
| 2 | 密封圈 | 1 | NBR |
| 3 | 压盖 | 1 | 灰铸铁,球墨铸铁 |
| 4 | 螺柱 | n | Q235A,35,1Cr8Ni9Ti |
| 5 | 螺母 | 5n | Q235A,20,1Cr8Ni9Ti |

库伦旗是内蒙古自治区通辽市下辖的一个旗。下辖5个镇、7个苏木、3个乡:库伦街道、库伦镇、扣河子镇、白音花镇、六家子镇、额勒顺镇和茫汗苏木。库伦旗是内蒙古自治区通辽市下辖的一个旗,旗人民驻库伦镇。位于通辽市西南部。东邻科尔沁左翼后旗,南接辽宁省阜新蒙古族自治县和彰武县,西连奈曼旗,北临开鲁县。地处东经121°09′~122°21′,北纬42°21′~43°14′之间。盛产荞麦和杂粮杂豆,被誉为"中国荞麦之乡"。库伦旗地处燕山北部山地向科尔沁沙地过渡地段。燕山山脉自旗境西南部延入,在中部与广袤的科尔沁沙地相接,构成旗境内南部浅山连亘,中部丘陵起伏,北部沙丘绵绵的地貌。整体地势呈西南高,东北低,海拔高度626.5米,低点为190米。





















咨询热线
0371-64030111
同微信
联系798790百万文字论坛-798790论坛开奖历史记录-百万综合文字论文798790-798790百万文字论坛开奖结果-798790百万文字论坛资料特色-500608百万文字论坛浏览器安装-500505百万文字论坛资料转载
免费获取 《解决方案以及报价》
在线咨询
微信咨询
请您添加右侧号码,微信咨询798790百万文字论坛-798790论坛开奖历史记录-百万综合文字论文798790-798790百万文字论坛开奖结果-798790百万文字论坛资料特色-500608百万文字论坛浏览器安装-500505百万文字论坛资料转载管道